вконтакте

Контактный телефон: +7 (981) 121-46-93, +7 (800) 200-90-76 , Email: parts-katalog@yandex.ru, где купить

 
 

  Логин:

Пароль:

Регистрация

www.partskatalog.ru Все каталоги Запчасти Mercury Запчасти Suzuki Запчасти Tohatsu Запчасти Honda Контакты



УВАЖАЕМЫЕ КЛИЕНТЫ!
C 19 ДЕКАБРЯ 2025 ПО 02 МАРТА 2026 ГОДА ОТДЕЛ ЗАПЧАСТЕЙ И СЕРВИС РАБОТАТЬ НЕ БУДУТ
ПРОДАЖА ЛОДОЧНЫХ МОТОРОВ В ШТАТНОМ РЕЖИМЕ
ОБ ИЗМЕНЕНИЯХ В ГРАФИКЕ РАБОТЫ ЧИТАЙТЕ НА САЙТА




Выбрать другую модель

назад Раздел:   вперёд

вернуться к списку узлов и деталей

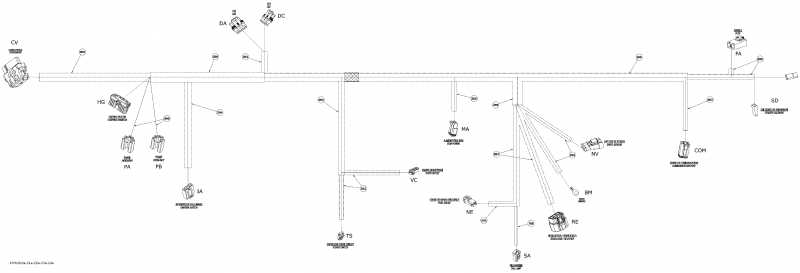
ДЕТАЛИРОВКА ДЛЯ МОДЕЛИ: SKIDOO Renegade Sport 550F, 2010

Раздел: Электрика - жгут проводов 1 | Electrical Harness 1


snowmobile - Electrical Harness 1

Номер на
рисунке
АртикулНаименованиеКол-во
на складе
Цена
1 515176882

Рама Жгут проводов (Frame Harness)

под заказ16330 руб.
3 515175312

голубой Coding Vinyl Tape (Blue Coding Vinyl Tape)

под заказпо запросу
18409902000

Трубопровод 12 mm (Tubing 12 mm)

под заказ1000 руб.
25515175442

Трубопровод 6 mm (Tubing 6 mm)

под заказ428 руб.
25513033364

GAINE *PROTECTOR TUBE

под заказ340 руб.
25409901700

Трубопровод 9 mm (Tubing 9 mm)

под заказ715 руб.
25409901800

Трубопровод 13 mm (Tubing 13 mm)

под заказ109 руб.
25414612400

GAINE *HOUSING

под заказпо запросу
96XXX

Tape (Tape)

BM278000992

Open Barrel (Open Barrel)

под заказ284 руб.
CO515175673

Male Корпус, 6 Circuits (Male Housing, 6 Circuits)

под заказ1150 руб.
CO515175678

Male Wedge, 6 Circuits (Male Wedge, 6 Circuits)

под заказ572 руб.
CO293000052

Сальникing Колпачок (Sealing Cap)

под заказ284 руб.
CO278000632

Female Клемма (Female Terminal)

под заказ284 руб.
CV515175801

Female Корпус, 24 Circuits (Female Housing, 24 Circuits)

под заказ941 руб.
CV515175802

Фиксатор Block (Retainer Block)

под заказ1000 руб.
CV515175812

Заглушка (Plug)

под заказ207 руб.
CV710000399

Female Корпус (Female Housing)

под заказ1440 руб.
CV515175803

Провод Сальник (Wire Seal)

под заказ292 руб.
CV515175806

Female Клемма (Female Terminal)

под заказ101 руб.
CV710001131

Female Клемма (Female Terminal)

под заказ715 руб.
DA409209700

Female Корпус, 4 Circuits (Female Housing, 4 Circuits)

под заказ1580 руб.
DA515176621

Провод Сальник (Wire Seal)

под заказ715 руб.
DA710001340

Female Клемма (Female Terminal)

под заказ428 руб.
DC409209600

Female Корпус, 3 Circuits (Female Housing, 3 Circuits)

под заказ2870 руб.
DC278001013

Провод Сальник (Wire Seal)

под заказ284 руб.
DC278001014

Female Клемма (Female Terminal)

под заказ284 руб.
FA710000992

Зажим (Clip)

под заказ284 руб.
FA293550004

Dielectric Смазка, 150 g (Dielectric Grease, 150 g)

под заказ4740 руб.
FA747018002

GRAISSE *GREASE

под заказ3710 руб.
FA409004000

Предохранитель Держатель (Fuse Holder)

под заказ540 руб.
FA409004200

Female Клемма (Female Terminal)

под заказ210 руб.
HG515175350

Female Клемма Корпус, 13 Circuits (Female Terminal Housing, 13 Circuits)

под заказ930 руб.
HG515175282

Female Клемма (Female Terminal)

под заказ223 руб.
HG515175231

Female Клемма (Female Terminal)

под заказ428 руб.
IA710000272

Female Клемма Корпус, 4 Circuits (Female Terminal Housing, 4 Circuits)

под заказ1000 руб.
IA710000273

Lock, 4 Circuits (Lock, 4 Circuits)

под заказ859 руб.
IA710000274

Female Клемма (Female Terminal)

под заказ859 руб.
MA515175670

Female Клемма Корпус, 2 Circuits (Female Terminal Housing, 2 Circuits)

под заказ627 руб.
MA515175675

Female Lock, 2 Circuits (Female Lock, 2 Circuits)

под заказ428 руб.
MA278000632

Female Клемма (Female Terminal)

под заказ284 руб.
NE515175654

Male Клемма Корпус, 2 Circuits (Male Terminal Housing, 2 Circuits)

под заказ715 руб.
NE515176297

LOGEMENT PT FEMELLE*HOUSING FT FEMALE

под заказпо запросу
NE515175232

Male Клемма (Male Terminal)

под заказ572 руб.
NV710000992

Зажим (Clip)

под заказ284 руб.
NV710000568

Корпус (Housing)

под заказ1000 руб.
NV515176621

Провод Сальник (Wire Seal)

под заказ715 руб.
NV515176164

Male Клемма (Male Terminal)

под заказ715 руб.
PA515176908

Female Корпус (Female Housing)

под заказ1160 руб.
PA515176909

Клемма (Terminal)

под заказ189 руб.
PB515176908

Female Корпус (Female Housing)

под заказ1160 руб.
PB515176909

Клемма (Terminal)

под заказ189 руб.
RE515176530

Коннектор (Connector)

под заказ2210 руб.
RE515176594

Сальник (Seal)

под заказ465 руб.
RE515176531

Клемма (Terminal)

под заказ465 руб.
SA515175495

Female Корпус, 3 Circuits (Female Housing, 3 Circuits)

под заказ1580 руб.
SA515175231

Female Клемма (Female Terminal)

под заказ428 руб.
SD409010400

Female Клемма Корпус, 1 Circuit (Female Terminal Housing, 1 Circuit)

под заказ572 руб.
SD409010100

Female Клемма (Female Terminal)

под заказ428 руб.
TS515176296

Female Клемма Корпус, 2 Circuits (Female Terminal Housing, 2 Circuits)

под заказ428 руб.
TS515175231

Female Клемма (Female Terminal)

под заказ428 руб.
VC515175658

Female Корпус, 2 Circuits (Female Housing, 2 Circuits)

под заказ1580 руб.
VC515175231

Female Клемма (Female Terminal)

под заказ428 руб.
ski-doo

Время выполнения запроса 1.7688610553741 сек.


 
 

данный сайт носит информационный характер и не является публичной офертой

склад запчастей для водомоторной техники